$247,400
Long Lake, MN 55356
MLS# 7006471
3 beds | 2 baths | 1569 sqft

1 / 21
Property Description
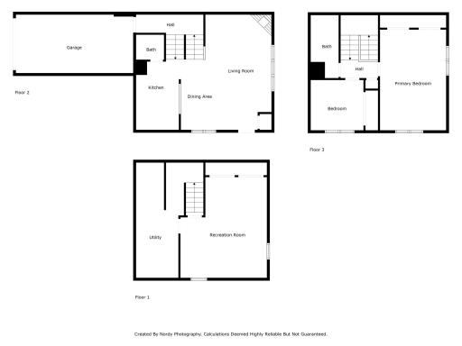
This charming 2-story townhome offers a versatile layout with spacious living across three levels. The main floor welcomes you with a bright living room featuring a cozy fireplace, a galley kitchen, and a convenient half bathroom. Upstairs, you’ll find two bedrooms including a spacious owner's suite and a full bathroom. The lower level expands your living options with a huge bedroom that could serve as a guest suite, office, or additional living space. A well-designed home that combines comfort, functionality, and flexibility!
Details
Maps
Contract Information
Owner is an Agent?: No
Auction?: No
Status: Active
Contingency: None
Current Price: $247,400
Original List Price: 249900
ListPrice: 247400
List Date: 2026-01-08
Office/Member Info
Association: MAAR
General Property Information
Assoc Mgmt Co. Phone #: 612-888-4710
Association Fee Frequency: Monthly
Association Mgmt Co. Name: Compass Management Group
Common Wall: Yes
Lot Measurement: Acres
Manufactured Home?: No
Multiple PIDs?: No
New Development: No
Number of Fireplaces: 1
Waterfront Present: No
Year Built: 1978
Yearly/Seasonal: Yearly
Zoning: Residential-Single Family
Lot Dimensions: 147'x190'x206'x45'
Acres: 0.1
Bath Three Quarters: 0
Bath Half: 1
Bath Quarter: 0
Main Floor Total SqFt: 523
Above Grd Total SqFt: 1046
Below Grd Total SqFt: 523
Total Finished Sqft: 1356.00
FireplaceYN: Yes
Foundation Size: 523
Style: (TH) Side x Side
Garage Stalls: 1
Association Fee: 385
Assessment Pending: Unknown
Bedrooms: 3
Baths Total: 2
Bath Full: 1
Total SqFt: 1569
Location, Tax and Other Information
AssocFeeYN: Yes
Legal Description: CIC NO 0758 BROWN ROAD COURT CONDO UNIT 334
Listing City: Long Lake
Map Page: 103
Municipality: Long Lake
School District: Orono
School District Phone: 952-449-8305
Zip Plus 4: 9403
Property ID Number: 3411823420111
Tax Year: 2025
Tax Amount: 2559
In Foreclosure?: No
Potential Short Sale?: No
Lender Owned?: No
Directions & Remarks
Public Remarks: This charming 2-story townhome offers a versatile layout with spacious living across three levels. The main floor welcomes you with a bright living room featuring a cozy fireplace, a galley kitchen, and a convenient half bathroom. Upstairs, you’ll find two bedrooms including a spacious owner's suite and a full bathroom. The lower level expands your living options with a huge bedroom that could serve as a guest suite, office, or additional living space. A well-designed home that combines comfort, functionality, and flexibility!
Directions: HWY 12 S ON BROWN RD TO PARK AVE L TO LAKEVIEW
Accessible
None: 1
Air Conditioning
Central Air: 1
Appliances
Cooktop: 1
Dishwasher: 1
Dryer: 1
Freezer: 1
Microwave: 1
Refrigerator: 1
Washer: 1
Assessments
Assessment Balance: 0
Tax With Assessments: 2559
Association Fee Includes
Hazard Insurance: 1
Lawn Care: 1
Outside Maintenance: 1
Snow Removal: 1
Basement
Egress Windows: 1
Full: 1
Bath Description
Main Floor 1/2 Bath: 1
Upper Level Full Bath: 1
Building Information
Finished SqFt Above Ground: 1046
Finished SqFt Below Ground: 310
Construction Status
Previously Owned: 1
Exterior
Vinyl: 1
Foundation
Other: 1
Fuel
Natural Gas: 1
Heating
Forced Air: 1
Insurance Fee
Insurance Fee: 0
Lease Details
Land Leased: Not Applicable
Miscellaneous Information
DP Resource: Yes
Homestead: No
Ownership
Fractional Ownership: No
Parking Characteristics
Garage Square Feet: 280
Public Survey Info
Range#: 23
Section#: 34
Township#: 118
Restriction/Covenants
Pets - Cats Allowed: 1
Pets - Dogs Allowed: 1
Pets - Weight/Height Limit: 1
Sellers Terms
Cash: 1
Conventional: 1
Conventional Rehab: 1
FHA: 1
FHA Rehab 203k: 1
Other: 1
Special Funding: 1
VA: 1
Sewer
City Sewer/Connected: 1
Stories
Two: 1
Townhouse Characteristics
End Unit: 1
Water
City Water/Connected: 1
Location Tax and Other Information
House Number: 334
Street Name: Lakeview
Street Suffix: Avenue
Postal City: Long Lake
County: Hennepin
State: MN
Zip Code: 55356
Complex/Dev/Subdivision: Cic 0758 Brown Road Court Condo
Property Features
Accessible: None
Air Conditioning: Central Air
Appliances: Cooktop; Dishwasher; Dryer; Freezer; Microwave; Refrigerator; Washer
Association Fee Includes: Hazard Insurance; Lawn Care; Outside Maintenance; Snow Removal
Basement: Egress Windows; Full
Bath Description: Main Floor 1/2 Bath; Upper Level Full Bath
Construction Status: Previously Owned
Exterior: Vinyl
Foundation: Other
Fuel: Natural Gas
Heating: Forced Air
Sellers Terms: Cash; Conventional; Conventional Rehab; FHA; FHA Rehab 203k; Special Funding; VA; Other
Sewer: City Sewer/Connected
Stories: Two
Townhouse Characteristics: End Unit
Water: City Water/Connected
Room Information
| Room Name | Dimensions | Level |
| Dining Room | 14x10 | Main |
| First (1st) Bedroom | 21x14 | Upper |
| Kitchen | 12x8 | Main |
| Living Room | 16x13 | Main |
| Second (2nd) Bedroom | 10x9 | Upper |
| Third (3rd) Bedroom | 18x16 | Lower |
Listing Office: HOMESTEAD ROAD
Last Updated: January - 30 - 2026
The data relating to real estate for sale on this web site comes in part from the Broker Reciprocity SM Program of the Regional Multiple Listing Service of Minnesota, Inc. The information provided is deemed reliable but not guaranteed. Properties subject to prior sale, change or withdrawal. ©2024 Regional Multiple Listing Service of Minnesota, Inc All rights reserved.
